製品概要
製品概要
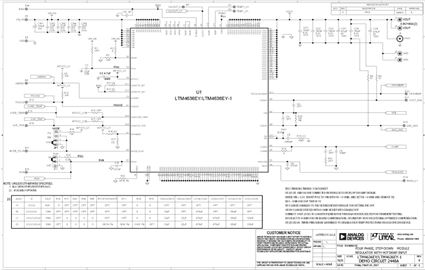
デモ回路DC2448A-BはLTM4636EYを使用するPolyPhase®設計が特徴です。LTM4636EYは、40Aの高効率スイッチ・モードの降圧電力µModule®レギュレータです。入力電圧範囲は4.7V~15Vです。VIN < 5.5Vの場合、R1 = 0Ωの状態でPVCCからVINに短絡し、R3 = 0Ωにセットして、R2を取り外します。出力電圧範囲は0.6V~3.3Vです。DC2448A-Bは公称120Aの出力電流を供給できます。データシートに説明されているように、特定のVIN、VOUTおよび熱条件では出力電流のディレーティングが必要です。ボードは重負荷条件では連続導通モードで動作します。低負荷電流時に高い効率を確保するために、MODE_PLLINジャンパは、ノイズに敏感なアプリケーションではパルス・スキップ・モードを選択し、ノイズの影響を受けにくいアプリケーションではバースト・モード®動作を選択します。さらにMODE_PLLINピンは、LTM4636を外部クロック・シグナルに同期させます。3つのLTM4636の位相は0°、120°、240°です。DC2448A-BにはLTM4636に内部、外部両方の補償回路を選択するオプションがあります。デモ回路DC2448A-Bを使用または変更する前に、このデモ・マニュアルと併せてLTM4636データシートを参照してください。対象となる製品
関連資料
- 
                                                                
                                                                    
                                                                                                                                            DC2448A - Schematic2018/06/06PDF198 K
 
- 
                                                                
                                                                    
                                                                                                                                            DC2448A-B - Demo Manual2019/04/01PDF1 M
 
- 
                                                                
                                                                    
                                                                                                                                            DC2448A - Design Files2018/06/06ZIP10 M
 
                                                
                                                
                                                
                                                


