概览
产品详情
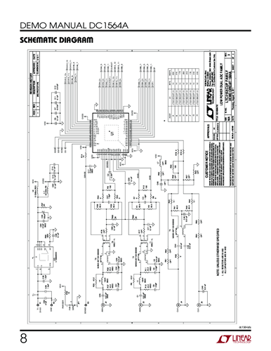
DC1564A-F: Demo Board for the LTC2155-12 Dual 12-Bit 170Msps ADC.
相关产品
文档
-
DC1564A - Schematic2012/1/3PDF188K
-
DC1564A - Demo Manual2012/1/3PDF411K
-
DC1564A - Design Files2012/1/3ZIP2M
